物件の特徴
主な設備
電気
公営水道
下水道
公共下水
都市ガス
主な特徴
小学校徒歩10分以内
スーパーが近い
市街地が近い
都市近郊
・ローンシュミレーションからライフプランの設計まで無料で作成いたします。
お家の見るチェックポイントや住宅ローンの事などなんでもお尋ねください。ご納得いただける物件が見つかるまでご提案させていただきます。ぜひ一度お越しください。お待ちしております。
物件概要
| 価格 | 2,230万円 | 坪単価 | 坪46.8万円 |
|---|---|---|---|
| 物件種別 | 土地 | ||
| 所在地 | 東京都立川市砂川町8丁目88-14 | ||
| アクセス | 西武拝島線『武蔵砂川』 徒歩9分 (約720m) |
||
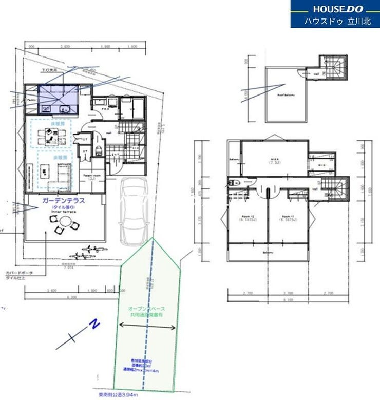
| 土地面積 | 157.4㎡(47.61坪) | 接道 | 東側(公道)幅 約4.0m |
| 私道 | セットバック | ||
| 最適用途 | 造成完了時期 | ||
| 地目 | 宅地 | 地勢 | その他 |
| 権利 | 所有権 |
||
| 都市計画 | 市街化区域 |
用途地域 | 工業 |
| 建ぺい/容積率 | 60% / 200% | 土地国土法 | |
| 許可番号 | 建築基準法 | ||
| 法令制限 | 高度地区・準防火地域 | ||
| 小学区 | 上砂川小学校 徒歩7分 (約560m) | 中学区 | 立川第五中学校 徒歩20分 (約1600m) |
| 現況 | 更地 | 引渡 | 未記入 |
| 建築条件 | 建築条件付 | ||
| その他費用 | |||
| 備考 | 森の子こども園・・・徒歩約6分/西砂川病院・・・徒歩約10分/ファミリーマート・・・徒歩約6分/マルエツ武蔵砂川店・・・徒歩約7分/ウェルパーク・・・徒歩約5分 建築条件付き売地 |
||
| 物件番号 | 4693672 | 取引態様 | 媒介 |




















担当エージェント:板谷 和友樹
ハウスドゥ立川北のホームページをご覧頂きありがとうございます。
お客様の多くがお家を買うのに不安があるかと思われます。ハウスドゥではお客様の不安や問題解決に一つ一つ誠心誠意お答えいたします。また、お家探しに役立つ多くの物件に関する情報を掲載しております。
ハウスドゥ立川北ではお客様お一人お一人にあったご提案を心がけており、ローンシュミレーションや人工知能を使ったライフプランの作成(要予約)を行いお客様の不安を解決いたします
■頭金は必要なのか?
■ローンは払っていけるのか?
■どのタイミングで住み替えや引越しが出来るのか?etc
お気軽に相談できるハウスドゥ立川北へお問い合わせ下さい